Villa singola in vendita

Pomezia, Via Afrodite - Sedici Pini
€ 550.000
5 locali 5 locali
300 Mq 300 Mq
4 bagni 4 bagni

Villa singola in vendita

Pomezia, Via Afrodite - Sedici Pini

Descrizione annuncio

Pomezia – VENDESI RAFFINATA VILLA A POMEZIA '16 PINI'.


Nel prestigioso complesso “16 Pini”, proponiamo in vendita una villa unifamiliare di ca 300 mq con vista mare, unica per posizione, ampiezza e qualità costruttiva. Immersa nel verde e circondata da ville indipendenti, garantisce privacy e tranquillità, a pochi minuti dai servizi e dal litorale.
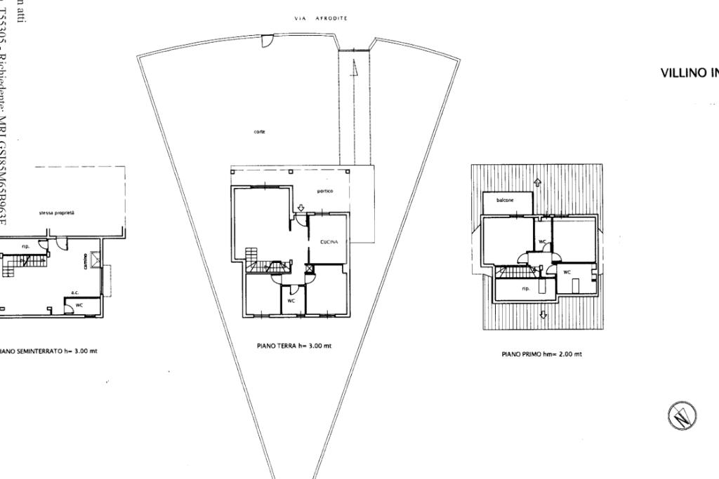
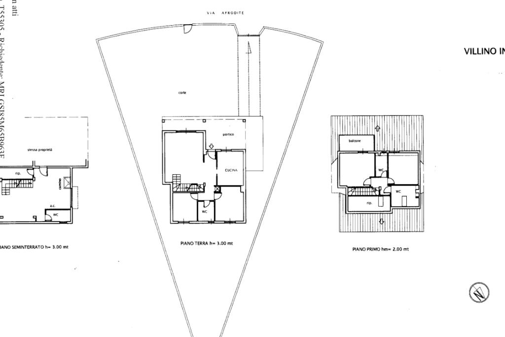
Realizzata con materiali antisismici, la villa si sviluppa su tre livelli: al piano terra troviamo salone ampio e luminoso, cucina abitabile, due camere e bagno con finestra; il primo piano ospita altre due camere, due bagni finestrati, un ripostiglio con possibilità di ricavare una cabina armadio, un balcone panoramico vista mare; il seminterrato, completamente isolato e con altezza di 3 metri, comprende sala hobby con termocamino, angolo cottura, bagno sempre con finestra, ripostiglio e accesso diretto al box auto di ca 80 mq per cinque vetture.
Completano la proprietà giardino di 600 mq con portico di 40 mq e irrigazione automatica, impianto d’allarme, grate, zanzariere, videocitofono, fibra ottica e caldaia a condensazione in classe A, elementi che garantiscono comfort, sicurezza ed efficienza energetica.
Una villa pensata per chi cerca spazi generosi, solidità costruttiva, sicurezza e una vista mare mozzafiato.
Per informazioni e appuntamenti chiamaci allo 06 9104066 o contattaci su whatsApp 370 3648473

Mostra tutto

Nelle vicinanze

Trasporto pubblico Trasporto pubblico
Largo Columella
Largo Columella
2,5 Km
Via Roma
Via Roma
2,6 Km
Ricariche auto elettriche Ricariche auto elettriche
Eneldrive Centro Commerciale Sedici Pini
130 m
Pomezia Anchise | EnelX
870 m
Pomezia Odisseo | EnelX
950 m
Pomezia Nenni | EnelX
1,4 Km
Pomezia Aldo Moro | EnelX
1,8 Km
Scuole Scuole
Istituto Largo Brodolini
1,3 Km
Istituto d'Istruzione Superiore "Blaise Pascal"
1,4 Km
Scuola dell'Infanzia Gianni Rodari
1,8 Km
Istituto di Istruzione Superiore "Nicolò Copernico"
2,1 Km
Scuole
2,2 Km
Farmacia Farmacia
Farmacia
2,3 Km
Farmacia
2,8 Km
Ospedali Ospedali
Casa di cura Sant'Anna
2,6 Km
Supermercati Supermercati
Centro Commerciale Sedici Pini
200 m
Carrefour
1,8 Km
EuroSpin
2,2 Km
Sigma
2,4 Km
CRAI
2,8 Km
Negozi Negozi
Negozi
890 m
Linus Pane E Dolci
1,9 Km
Mercatino Mondo Dell'usato Pomezia
2,5 Km
moda in
2,6 Km
KPfit
2,6 Km
Ristoranti Ristoranti
Il Rifugio di Pasa
770 m
Al Colle
770 m
La Terrazza
2,0 Km
Da Petrucci
2,0 Km
La Grande Muraglia
2,1 Km
Mostra tutto

Caratteristiche

Rif.:
61187145
Piano:
2 di 3 (Piano medio)
Box:
1
Balconi:
1
Camere da letto:
4
Arredamento:
Assente
Mostra tutto
Prezzo Prezzo
€ 550.000
Rata mutuo Rata mutuo
€ 2.613 / mese
Spese annue Spese annue
€ 0
Proponi il tuo prezzoProponi il tuo prezzo

Classe Energetica

B
B
B
B
B
B
B
B
B
EP globale non rinnovabile:
68.80 kW h/m² anno
EP globale rinnovabile:
59.34 kW h/m² anno
EP invernale del fabbricato:
EP estiva del fabbricato:
Anno di costruzione:
2000
Riscaldamento:
Autonomo
Tipo impianto:
A radiatori
Tipo alimentazione:
Metano

Ti interessa visionare l'immobile?

Fissa un appuntamento  Fissa un appuntamento

Richiedi informazioni

Clicca su Leggi per aprire l'informativa
* Questi campi sono obbligatori

Calcola il tuo mutuo

Semplice e senza impegno
Anticipo

( % )
Mutuo

( % )

pochi semplici passi

inserisci i tuoi dati
Questionario completato
Grazie per aver richiesto un appuntamento senza impegno con un nostro Consulente del Credito e Assicurativo.

Hai inserito correttamente tutti i dati necessari e a breve riceverai una e-mail con un link da convalidare per inviare i tuoi dati.
Affiliato
Immobiliare Pomezia Srls
Via Roma, 129 00071 Pomezia (RM)

Il nostro staff


  • Letizia Rizzuto
    Responsabile

  • Marzia Pierini
    Collaboratrice
Via Roma, 129 00071 Pomezia (RM)
Zona: Pomezia
Mostra su mappa
Orari: Lunedì - Venerdi 09:00-13:00 15:30-19:30 Sabato 09:00 - 13:00 Domenica su appuntamento.
Affiliato
Immobiliare Pomezia Srls
Via Roma, 129 00071 Pomezia (RM)

2026 Tecnocasa Franchising S.p.A. - P. IVA 08365160152 - Via Monte Bianco 60/A 20089 Rozzano (MI). Ogni agenzia ha un proprio titolare ed è autonoma. Privacy policy | Policy utilizzo | Cookie policy